作者: 时间:2015-05-07 15:30:53

长沙e中心项目,浏阳经开区开发投资有限公司旗下全资子公司浏阳汇远地产精心打造的复合型、生态化的产城综合体项目。以国家级浏阳经开区整体发展为依托,高起点规划、高标准建设,高水平管理,集中发展优势产业,集中打造产业集群综合服务平台,主要为电子信息产业,尤其是移动智能终端产业、医疗器械产业、高科环保三大高新产业的企业提供研发、生产、办公住宿、资金、政策等全方位的系统解决方案。
项目总占地500亩,西临湘台路,东临克里河,北临康万路,南临康平路。总建筑面积50万平方米,分两期开发,由五大部分组成,30万平方米标准工业厂房,12万平方米精品配套公共租赁住房,4万平方米星级商务酒店及配套商业街区,3万平方米总部办公,1万平方米综会务、展览等合配套服务大楼。
长沙e中心招商的主要产业是移动智能终端制造、电子信息、医疗器械及其它无污染的高新技术产业。将打造成为”产城融合、宜居宜业”“生产、生活、生态”三位于一体的议题发展型现代城市产业综合体项目。预计可为200家以上企业提供发展平台,入驻企业年产值将超过200亿元。全部建好将成为整个湖南省规模最大,配套最全的工业地产项目。
位置——多维交通,中部枢纽

9宗8横立体路网,5小时速达全国。
长沙作为全国唯一一个三条高铁相交的枢纽城市,京深高铁、沪昆高铁、渝厦高铁,从长沙出发,1小时到武汉、2小时到广州,3小时到上海、4小时到昆明,5小时到北京。
项目总规划——工业社区,新型产业之都

一中心——长沙e中心
两纵——城市景观公园带、园区步行景观轴
三横——三条横向林荫大道
四平台——信息与沟通平台、交易与物流平台、资金与资源平台、会议与展示平台
五片区——生产制造区、企业总部区、仓储物流区、商务办公区、综合配套区。
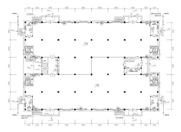
长沙e中心一期精工标准厂房

长沙e中心一期精工标准厂房位于整个项目的核心位置,总占地136亩,总建筑面积12.3万平米,从南往北依次有序排列8栋“工”字型厂房,均为5层设计,西边为A系列,东边为B系列。楼宇之间的楼间距均在17米以上,可以保证各个厂房的通风及采光。园区实行人车分流,主景观道呈“十”字型,最宽的地方53米,最窄的地方也有30米,每栋厂房之间均被整齐排列的高大乔木分开,乔木、灌木、草坪,错落有致的分布,让园区生机勃勃,美观大方,给您营造的是最好的生产环境。
目前一期精工标准厂房已经全部建成,基伍云商科技、泰奇、宁泰等企业均已签约入驻。
长沙e中心配套公租房——汇远·东郡

精工标准厂房的东边是我们专门为长沙e项目建设的配套公租房项目——汇远·东郡。入住企业的住的问题完全可以在此解决。
公租房建设分成三期,总占地约150亩,总建筑面积17万平米,有近2000套公租房。面积30—60平方米不等,多种户型,满足不同企业、不同层次需求。一期500套公租房预计5月底封顶,8月底投入使用,汇远·东郡项目即将申请全省示范性公租房项目,所有的建设标准、园林绿化、物业管理均是最高配置,给您的员工提供最好的居住环境.
户型——模块设计,智能组合
最小单位为750平方米,整层面积约2700-3200平米,9米网住,方正矩形,内未设实体墙,可以自由组合。层高依楼层变化而不同,最高的有6米,最低的3.9米,满足客户的多样化需求。
招商热线:0731-83303111 0731-83280588
营销中心地址:浏阳经开区湘台路介面光电北边
信息来源:管理用户 责任编辑:寻苗苗